Taman Juara | Menggatal | 2-storey Terrace House
Contact 016 552 2666 (Yeoh) for more info about this…
RM2,200
For Sale
RM1,500,000










‼️ FOR SALE ‼️
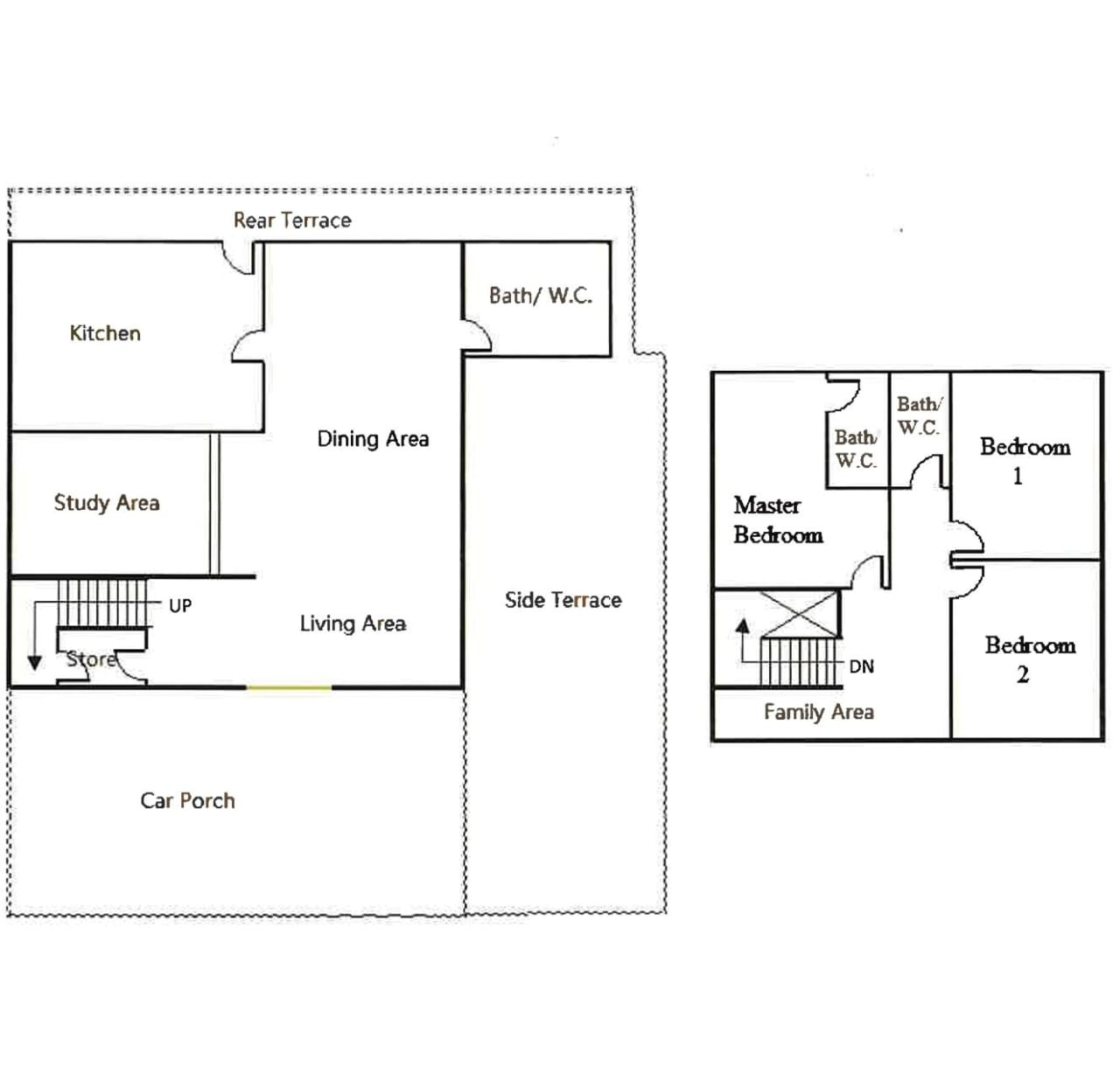
📍Taman Fu Yen | Foh Sang | Luyang | Damai | Lintas | 2 Storey Terrace House | CL999
*Property Details :*
⭐ Double Storey Terrace House
⭐ Land area: 3,650 sf
⭐ 4 Bedrooms + 3 Bathrooms
⭐ 6 Car Porch
⭐ Leasehold: 999 years
⭐ Renovated external
💲Selling Price : RM 1,500,000💲 -Nego
Indication value RM1.7m
Looking to buy, sell, or rent a property?
Feel free to reach out via call or WhatsApp for assistance. ☺️
Joanne Lee (REN 78210)
https://wa.me/60167060928
Contact 016 552 2666 (Yeoh) for more info about this…
RM2,200
ORIENTAL PARK FOR SALE ============= CORNER UNIT!! Land 3750sqft Big…
RM850,000
Elemen Utara Condominium | Level 21 | Menggatal | Fully Furnished